Füllen Sie den BIM Warenkorb aus dem Produktkatalog

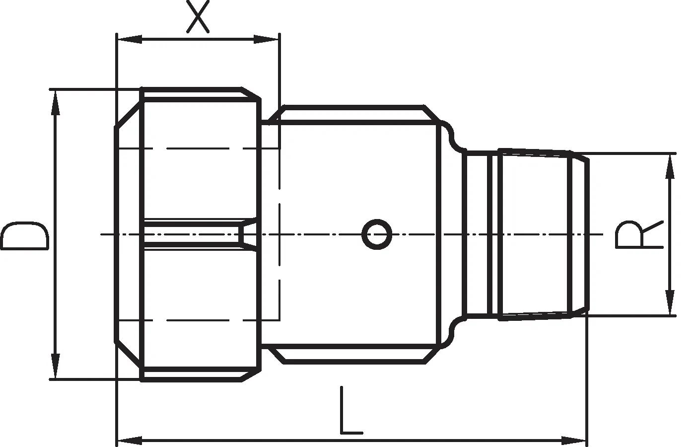
GF Primofit Adapter mit Außengewinde verzinkt für Bleirohr lead - R NBR 18,3-21,9 - R1/2 MT G

GF Primofit Adapter mit Außengewinde verzinkt für Bleirohr lead - R NBR 18,3-21,9 - R1/2 MT G
Teil Nr.1156565

Details

Dimension

Breite der Artikeleinheit45
Item_UOMSt.
Länge der Artikeleinheit73
Höhe der Artikeleinheit45
Gewicht der Artikeleinheit0,2464

Measurements

LÄNGE_L73

Packaging

FieldPL1PL2PL4
Verpackung GTIN07611205766115 07611205066116 06414900074148
Verpackungsband-0,00988 0,69984
Verpackungsbreite45 190 800
Verpackungsgewicht0,25455 6,57775 380,1985
Verpackungshöhe45 200 729
Verpackungslänge73 260 1200
Verpackungsmenge1 25 1350
VerpackungstypPlastic_Bag Medium_Box Pallet
Verpackungsvolumen0,000147825 --

Product code

Item no GTIN07611205016111
Item no EAN7611205016111
Item no GF775202801