Llenar la cesta de la compra BIM desde el catálogo de productosLlenar la cesta de la compra BIM desde el catálogo de productos
Nuestra dirección de correo electrónico de atención al cliente ha cambiado - Resumen
 

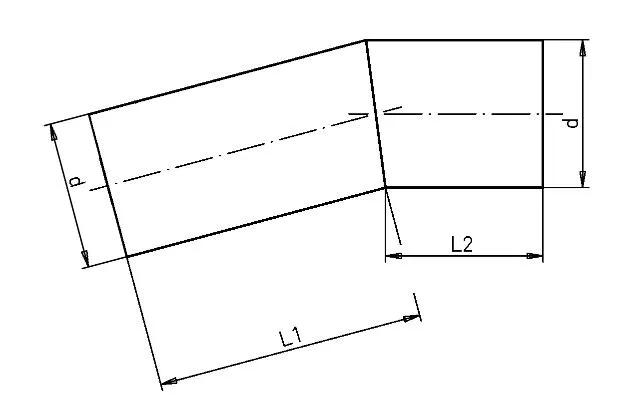
GF INSTAFLEX codo 15deg

Codo prefabricado con extremos cortos y largos para accesorios de electrofusión
Calidad a medida de GF, sin revestimiento, fabricado en Suiza
Embalado individualmente en bolsas de plástico
* previa solicitud

GF INSTAFLEX codo 15deg

Detalle del producto

GF INSTAFLEX codo 15deg d63

Documentos

Certificado de aprobación
105 B0000122203

GF JRG CER Instaflex SYS MECH ABS-25-0231171-PDA Master EN (0000122203)

Certificado de aprobación
44 B0000115615

GF JRG CER Instaflex SYS MECH RINA MAC245324XG Master EN (0000115615)

Certificado de aprobación
660 B0000115614

GF JRG CER Instaflex SYS MECH LR LR22512700TA Master EN (0000115614)

Imágenes de producto

1152509_ZMD
1152509
18 B
1152509_PHO
1152509_PHO
9 B