Remplir le panier BIM à partir du catalogue de produits

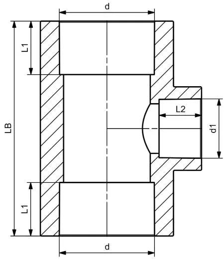
GF Aquasystem réducteur en T PPR green 50x20x50mm

GF Aquasystem réducteur en T PPR green 50x20x50mm
n° de partie1148922

Détails et variantes du produit

Dimensions

Article Unité Largeur106
Item_UOMpièce
Article Unité Hauteur80
Article Poids unitaire0,202
Article Unité Longueur69

Measurements

Diamètre_intérieur_di19,2
Longueur (l2)18,0

Packaging

FieldPL1PL2PL4
Emballage GTIN06414900145893 06414900279352 06414900279369
Hauteur d'emballage350 243 1200
Largeur d'emballage106 252 1000
Longueur de l'emballage300 415 1200
Poids de l'emballage1,01 8,08 412,84
Quantité d'emballage5 40 1920
Type d'emballagePlastic_Bag Medium_Box Pallet
Volume d'emballage0,01113 0,02541294 1,44

Product code

Item no EAN8698652018843
Item no GF4302905021021
Item no GTIN08698652018843

Documents

Environmental Product Declaration (EPD)
662 B1184372

Uponor EPD Aquasystem (1184372)