Napunite BIM košaricu iz kataloga proizvoda
Adresa e-pošte naše korisničke službe se promijenila - Pregled

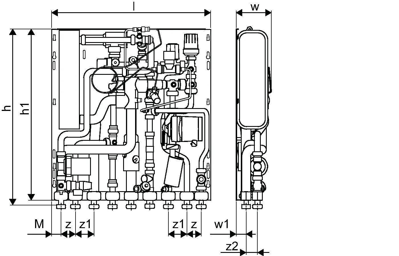
Uponor Combi Port M-Pro toplinska podstanica UFH

Verzija za podno grijanje (UFH) za potrošnu toplu vodu i izravno grijanje s priključkom na podno grijanje (uključujući krug miješanja i cirkulacijsku pumpu)
Skraćenice:
- 15, 19 - oznaka za kapacitet potrošne tople vode (l/min)
- CB - bakreno lemljeni izmjenjivač topline od nehrđajućeg čelika za pripremu sanitarne tople vode
- St - lemljeni izmjenjivač topline od nehrđajućeg čelika bez obojenih metala za pripremu potrošne tople vode
- BP - funkcija predgrijavanja polaznih vodova
- DT - regulator diferencijalnog tlaka na ogrijevnom dijelu toplinske podstanice za pripremu potrošne tople vode
- ZM - cirkulacijski modul za potrošnu toplu vodu sa sigurnosnim ventilom, cirkulacijskom pumpom i regulatorom diferencijalnog tlaka
- MS - set za miješanje s cirkulacijskom pumpom, termostatom i nepovratnim ventilom za ogrijevni krug stambenog prostora
- TL - termostatski limitator temperature potrošne tople vode sa uronjenim senzorom
- UL - termostatski limitator temperature za krug podnog grijanja
- SS - sigurnosna termostatska sklopka za ogrijevni krug stambenog prostora
- ZA - zonski ventil na povratnom vodu kruga stambenog grijanja s uključenim 2-točkastim termopogonom
- 2C - drugi direktni krug grijanja s dodatnim zonskim ventilom (bez termopogona, bez kruga miješanja)

Uponor Combi Port M-Pro toplinska podstanica UFH

Detalji o proizvodu

Uponor Combi Port M-Pro toplinska podstanica UFH 15 CB BP MS UL TL SS ZA
Uponor Combi Port M-Pro toplinska podstanica UFH 15 CB BP MS UL TL SS ZA 2C
Uponor Combi Port M-Pro toplinska podstanica UFH 15 St BP DT ZM MS UL SS ZA 2C
Uponor Combi Port M-Pro toplinska podstanica UFH 19 CB BP MS UL TL SS ZA
Uponor Combi Port M-Pro toplinska podstanica UFH 19 CB BP MS UL TL SS ZA 2C
Uponor Combi Port M-Pro toplinska podstanica UFH 19 St BP DI ZM MS UL SS ZA 2C

Dokumenti

Brzi vodič
4 KB1143305

Brzi vodič Combi Port M-Pro (1143305)

Priručnik za postavljanje i rad
10 KB1143442

Priručnik za postavljanje i rad Combi Port M-Pro (1143442)

Tehničke informacije
12 KB1094902

Tehničke informacije Combi Port and Aqua Port (1094902)

EU Izjava o sukladnosti
756 B1143059

Uponor DoC Combi Port M-Pro 1093787 INT

Općenito

Projektanti

- Toplinska podstanica potpuno sastavljena i tlačno ispitana
- Tehnička ograničenja uporabe ogrijevne vode i vodovoda prikazane su u tehničkim listovima
- Obujmice za cijevi od plastike za zvučnu zaštitu i toplinsko odvajanje
- DVGW certificirani PM ventil s patentiranom tehnologijom trostrukog brtvljenja
- Toplinska izolacija na dovodnim cijevima
- Termostatski bypass ventil
- Izlaz za hladnu vodu
- Odstojnik za mjerilo toplinske energije 110 mm x3/4"
- Odstojnik za vodomjer 110 mm x3/4"
- Odzračni i odvodni ventil
- Hvatač nečistoća za hladnu vodu 0,5 mm
- Hvatač nečistoća za primarni opskrbni vod grijanja 0,5 mm
- Mogućnost priključka (označena) za uzemljenje
- Max. radni tlak grijanje: PN10
- Max. radni tlak sanitarni: PN10
- Max. radna temperatura: 85 °C
- Max. diferencijalni tlak grijanja u primaru: 2,5 bar
- Min. sanitarni tlak: 2,0 bar
- Materijal spojnica sanitarni: CW617N
- Materijal spojnica grijanje: CW617N, CW614N
- Materijal cijevi: nehrđajući čelik 1.4401
- Mjere: Š/V/D 556 x 620 x 110 mm

Primjena

- Decentralizirana trenutna priprema potrošne tople vode
- Sustavi podnog grijanja
- Radijatorski sustavi grijanja

Certifikat

- DVGW certifikat

Crteži proizvoda

1093787_ZMD
1093787
327 B
1093788_ZMD
1093788
333 B
1093791_ZMD
1093791
327 B
1093792_ZMD
1093792
333 B
1128852_ZMD
1128852
348 B
1128853_ZMD
1128853
342 B
1093787_REN
1093787
137 B
1093787_REN
1093787
708 B
1093788_REN
1093788
145 B
1128852_REN
1128852
156 B
1128853_REN
1128853
161 B
1093787_LAB
1093787
169 B
1093788_LAB
1093788
177 B
1093791_LAB
1093791
165 B
1093792_LAB
1093792
174 B
1128852_LAB
1128852
186 B
1128853_LAB
1128853
185 B