Töltse meg a BIM kosarat a termékkatalógusból

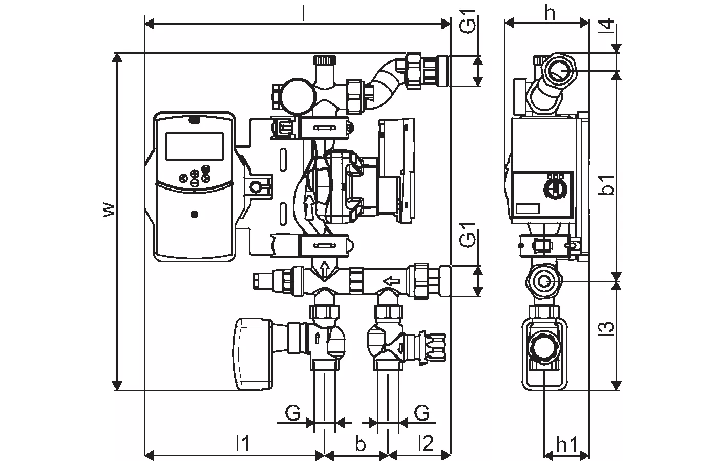
Uponor Fluvia Move bekeverő egység Push-23-A-AC

- Fűtésre/hűtésre
- Uponor Smatrix Move szabályzóval
- Külső hőmérséklet érzékelő
- Előremenő hőmérséklet érzékelő
- Wilo Yonos Para 15/6 szivattyú
- Emelőmagasság: Q: 0,1-2,5 m³/h, H: 6-2,4 m EEI 0,17
- Szelep kvs: 1,2m³/h
- Osztó-gyűjtő csatlakozó: külsőmenetes 1”-os G1,
- Golyóscsap
- Beszabályzó szelep
- Max. primer oldali hőmérséklet: 90°C
- Max. szekunder oldali hőmérséklet: 55°C
- Max. üzemi nyomás: 6bar

Uponor Fluvia Move bekeverő egység Push-23-A-AC

Termék adatok

Uponor Fluvia Move bekeverő egység Push-23-A-AC

Dokumentumok

Telepítési útmutató
1 KB1095411

Telepítési útmutató Fluvia Move pumpgroup Push-23-A-AC (1095411)

Leírás

Specifikáció

- Szivattyúcsoport előre szerelve Uponor Smatrix Move előmelegítő hőmérséklet-szabályozóval
- Kültéri hőmérséklet-érzékelő (az épületen belüli telepítéshez)
- Vízhőmérséklet-érzékelő az előremenő hőmérséklethez
- 3-utas keverőszelep
- Motoros meghajtás
- Arányos nyomásszabályozás
- Fűtésre/hűtésre történő frissítés lehetséges

Alkalmazás

- Az időjárás-kompenzált tápvízhőmérséklet-szabályozáshoz
- Max. Primer oldali hőmérséklet: 90°C
- Max. Szekunder oldali hőmérséklet: 55°C

Termékrajzok

1085008_ZMD
1085008
296 B
1085008_LAB
1085008
131 B
1085008_REN
1085008
96 B