Fyll BIM-kurven fra produktkatalogen

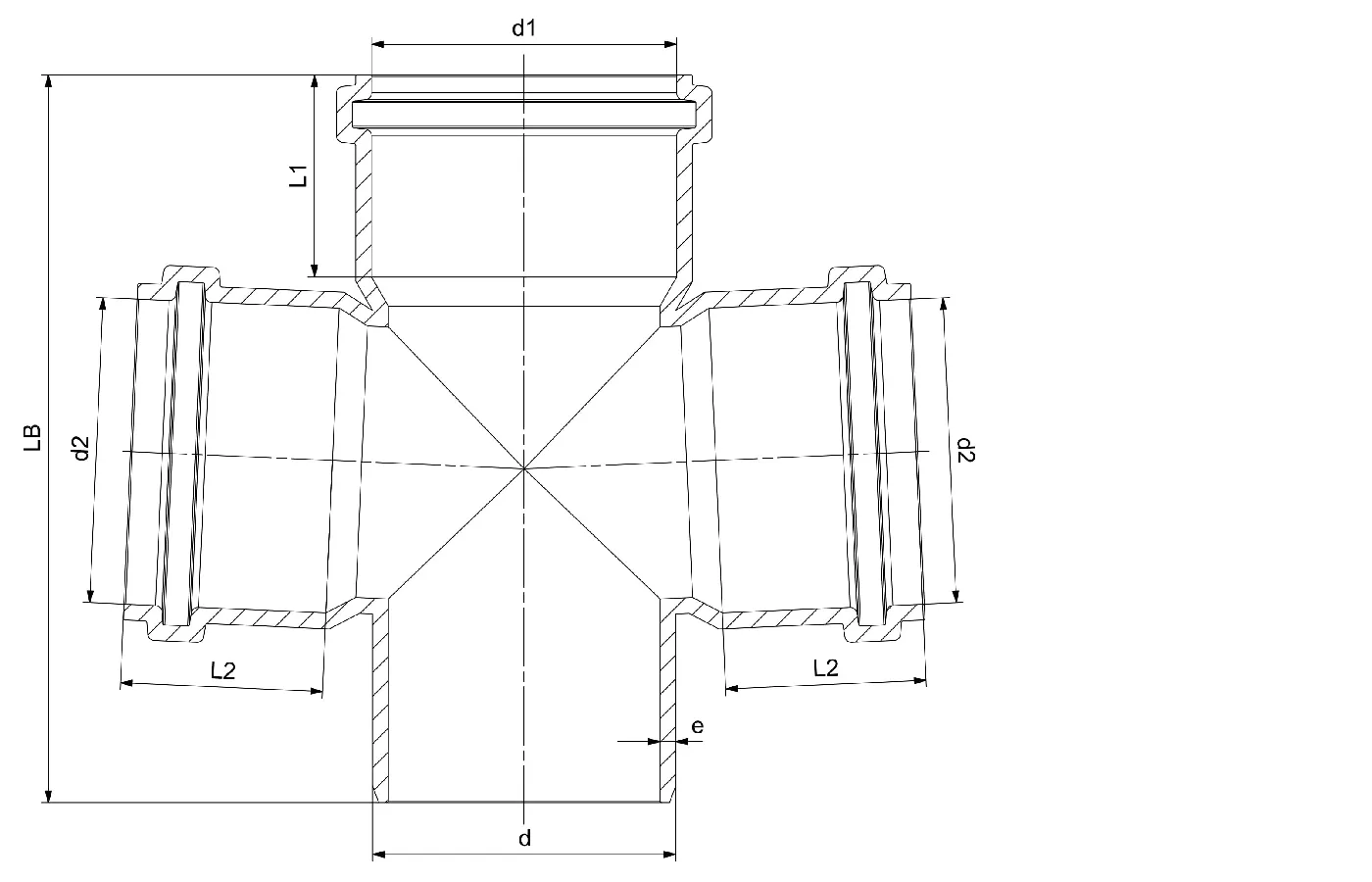
GF Silenta 3A dobbel grenrør 87,5deg

GF Silenta 3A dobbel grenrør 87,5deg

Varedetaljer

GF Silenta 3A dobbel grenrør 87,5deg 110-110mm

Dokumenter

Installasjonsanvisning
3 KB1187772

IM Silenta INT 1187772 v1

Godkjenningsbevis
229 B0000122052

GF HAKAN CER Silenta 3A SYS MECH SINTEF Nr.4043 NO NO (0000122052)

Produkttegninger

1146688_ZMD
1146688
180 B
1146688_PHO
1146688_PHO
22 B