Preencher o cesto de compras BIM a partir do catálogo de produtos

GF Aquasystem Te de redução PPR Green 63x50x63mm

GF Aquasystem Te de redução PPR Green 63x50x63mm
Peça n.º1148942

Detalhes do item

Dimensões

Item_UOMpce
Altura da unidade do item100
Peso unitário do item0,4
Largura da unidade do item112
Comprimento da unidade do item85

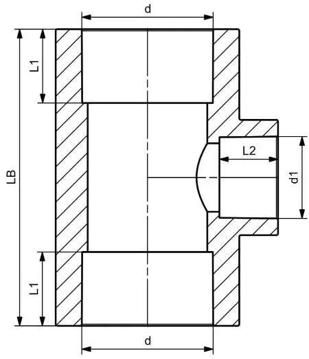
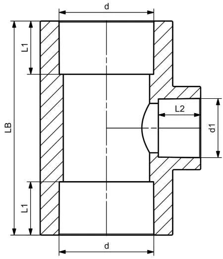
Measurements

Diâmetro_interno_di48,9
Comprimento (l2)23,5

Packaging

FieldPL1PL2PL4
Altura da embalagem350 243 1200
Comprimento da embalagem300 415 1200
Embalagem GTIN06414900146326 06414900192361 06414900192378
Largura da embalagem112 -1000
Largura da Embalagem-252 -
Peso da embalagem1,6 6,4 332,2
Quantidade de embalagem4 16 768
Tipo de embalagemPlastic_Bag Medium_Box Pallet
Volume de embalagem0,01176 0,02541294 1,44

Product code

Item no GF4302906321721
Item no GTIN08698652149202
Item no EAN8698652149202

Documents

Declaração Ambiental de Produto DAP
662 B1184372

Uponor EPD Aquasystem (1184372)