Preencher o cesto de compras BIM a partir do catálogo de produtos

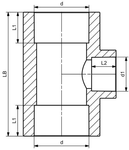
GF Aquasystem Te de redução PP-R Green 110x63x110mm

GF Aquasystem Te de redução PP-R Green 110x63x110mm
Peça n.º1148691

Detalhes do item

Dimensões

Largura da unidade do item145
Altura da unidade do item170
Item_UOMpce
Peso unitário do item1,53
Comprimento da unidade do item195

Measurements

Comprimento (l2)27,5
Diâmetro_interno_di61,9

Packaging

FieldPL2PL4
Altura da embalagem243 1300
Comprimento da embalagem415 1300
Embalagem GTIN06414900192088 06414900192095
Largura da embalagem-1100
Largura da Embalagem252 -
Peso da embalagem4,59 245,32
Quantidade de embalagem3 144
Tipo de embalagemMedium_Box Pallet
Volume de embalagem0,02541294 1,859

Product code

Item no GTIN08698652153292
Item no GF4302411021522
Item no EAN8698652153292

Documents

Declaração Ambiental de Produto DAP
662 B1184372

Uponor EPD Aquasystem (1184372)