Preencher o cesto de compras BIM a partir do catálogo de produtos

GF Aquasystem Te de redução PP-R Green 75x20x75mm

GF Aquasystem Te de redução PP-R Green 75x20x75mm
Peça n.º1148951

Detalhes do item

Dimensões

Peso unitário do item0,556
Largura da unidade do item138
Item_UOMpce
Comprimento da unidade do item98
Altura da unidade do item108

Measurements

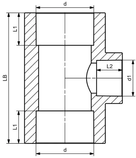
Comprimento (l2)14,5
Diâmetro_interno_di19,2

Packaging

FieldPL1PL2PL4
Altura da embalagem350 243 1300
Comprimento da embalagem300 415 1300
Embalagem GTIN06414900204224 06414900191630 06414900191647
Largura da embalagem138 -1100
Largura da Embalagem-252 -
Peso da embalagem1,112 5,56 291,88
Quantidade de embalagem2 10 480
Tipo de embalagemPlastic_Bag Medium_Box Pallet
Volume de embalagem0,01449 0,02541294 1,859

Product code

Item no GTIN08698652163413
Item no EAN8698652163413
Item no GF4302907521621

Documents

Declaração Ambiental de Produto DAP
662 B1184372

Uponor EPD Aquasystem (1184372)