Preencher o cesto de compras BIM a partir do catálogo de produtos

GF Aquasystem Te de redução PPR green 75x40x75mm

GF Aquasystem Te de redução PPR green 75x40x75mm
Peça n.º1148954

Detalhes do item

Dimensões

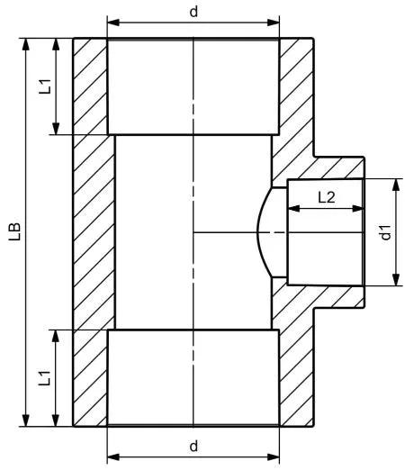
Comprimento da unidade do item98
Largura da unidade do item138
Peso unitário do item0,558
Item_UOMpce
Altura da unidade do item112

Measurements

Comprimento (l2)20,5
Diâmetro_interno_di39,0

Packaging

FieldPL1PL2PL4
Altura da embalagem350 243 1300
Comprimento da embalagem300 415 1300
Embalagem GTIN06414900204286 06414900191579 06414900191586
Largura da embalagem138 -1100
Largura da Embalagem-252 -
Peso da embalagem1,116 5,58 292,84
Quantidade de embalagem2 10 480
Tipo de embalagemPlastic_Bag Medium_Box Pallet
Volume de embalagem0,01449 0,02541294 1,859

Product code

Item no EAN8698652163444
Item no GTIN08698652163444
Item no GF4302907521921

Documents

Declaração Ambiental de Produto DAP
662 B1184372

Uponor EPD Aquasystem (1184372)