Preencher o cesto de compras BIM a partir do catálogo de produtos

GF Aquasystem Te de redução PP-R Green 75x50x75mm

GF Aquasystem Te de redução PP-R Green 75x50x75mm
Peça n.º1148955

Detalhes do item

Dimensões

Peso unitário do item0,562
Largura da unidade do item138
Comprimento da unidade do item97
Item_UOMpce
Altura da unidade do item115

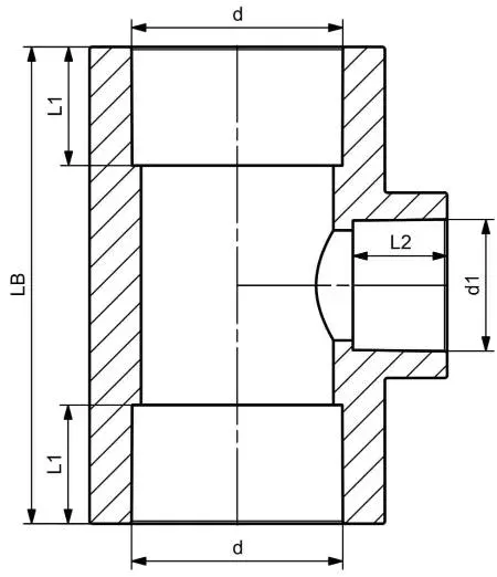
Measurements

Comprimento (l2)23,5
Diâmetro_interno_di48,9

Packaging

FieldPL1PL2PL4
Altura da embalagem350 243 1300
Comprimento da embalagem300 415 1300
Embalagem GTIN06414900204309 06414900191555 06414900191562
Largura da embalagem138 -1100
Largura da Embalagem-252 -
Peso da embalagem1,124 5,62 294,76
Quantidade de embalagem2 10 480
Tipo de embalagemPlastic_Bag Medium_Box Pallet
Volume de embalagem0,01449 0,02541294 1,859

Product code

Item no GTIN08698652163451
Item no EAN8698652163451
Item no GF4302907522021

Documents

Declaração Ambiental de Produto DAP
662 B1184372

Uponor EPD Aquasystem (1184372)