Preencher o cesto de compras BIM a partir do catálogo de produtos

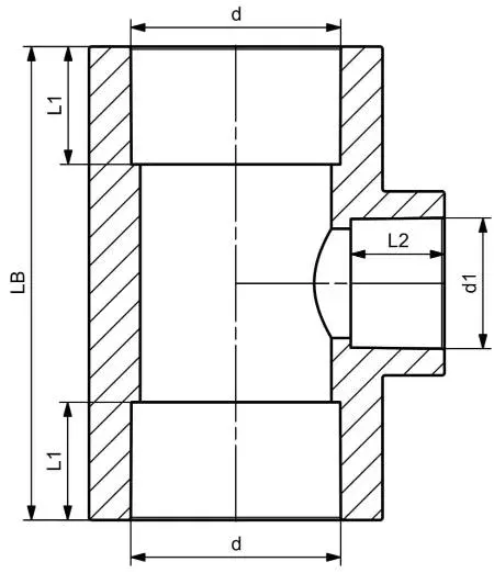
GF Aquasystem Te de redução PP-R Green 50x20x50mm

GF Aquasystem Te de redução PP-R Green 50x20x50mm
Peça n.º1148922

Detalhes do item

Dimensões

Item_UOMpce
Altura da unidade do item80
Peso unitário do item0,202
Largura da unidade do item106
Comprimento da unidade do item69

Measurements

Diâmetro_interno_di19,2
Comprimento (l2)18,0

Packaging

FieldPL1PL2PL4
Altura da embalagem350 243 1200
Comprimento da embalagem300 415 1200
Embalagem GTIN06414900145893 06414900279352 06414900279369
Largura da embalagem106 -1000
Largura da Embalagem-252 -
Peso da embalagem1,01 8,08 412,84
Quantidade de embalagem5 40 1920
Tipo de embalagemPlastic_Bag Medium_Box Pallet
Volume de embalagem0,01113 0,02541294 1,44

Product code

Item no GF4302905021021
Item no GTIN08698652018843
Item no EAN8698652018843

Documents

Declaração Ambiental de Produto DAP
662 B1184372

Uponor EPD Aquasystem (1184372)