Preencher o cesto de compras BIM a partir do catálogo de produtos

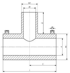
GF Aquasystem Te eletrosoldável PPR Green 160mm

GF Aquasystem Te eletrosoldável PPR Green 160mm
Peça n.º1163196

Detalhes do item

Dimensões

Comprimento da unidade do item204
Item_UOMpce
Peso unitário do item3,2
Altura da unidade do item364
Largura da unidade do item319

Packaging

FieldPL1PL2
Altura da embalagem110 370
Comprimento da embalagem290 420
Embalagem GTIN06414900649063 06414900209731
Largura da embalagem190 -
Largura da Embalagem-320
Peso da embalagem3,21 6,52
Quantidade de embalagem1 2
Tipo de embalagemPiece Medium_Box
Volume de embalagem0,006061 0,049728

Product code

Item no EAN6414900512411
Item no GTIN06414900512411
Item no GF200087258