Iz kataloga izdelkov napolnite košarico BIM

Uponor Combi Port M-Hybrid toplotna postaja HP

- Različica stanovanjske toplotne postaje za indirektno pripravo sanitarne tople vode v električnih omrežjih z električnim grelnikom 400 V in s priključki za ogrevanje stanovanja za nizkotemperaturen sisteme toplotnih črpalk
- Oznake za dimenzioniranje:
- 400V - ustrezna napetost električnega omrežja za električni grelnik 400V za pripravo sanitarne vode
- 15, 18 - oznaka za kapaciteto sanitarne tople vode (l/min), ko je mešana na 38˚C
- St - toplotni izmenjevalec iz nerjavečega jekla zalotan z nerjavnim materialom (brez barvnih kovin), za pripravo sanitarne tople vode
- 13H2 – 13 kW instalirane moči za ~53˚C temperature tople sanitarne vode pri 10 l/min (ali ~15 l/min pri mešanju na 38˚C)
- 21H3 – 21 kW instalirane moči za ~60˚C temperature sanitarne tople vode pri 10 l/min (ali ~18 l/min pri mešanju na 38˚C)
- DI - glavni regulator diferenčnega tlaka na vhodu v stanovanjsko toplotno postajo
- DH - sekundarni regulator diferenčnega tlaka na vodu stanovanjskega ogrevalnega kroga
- BP - funkcija predgretja dovodnih vodov
- HA - dušilec tlačnih udarov na sanitarni topli vodi (na strani stanovanja)
- FR – zbiralnik umazanije na povratnem vodu ogrevanja stanovanja

Uponor Combi Port M-Hybrid toplotna postaja HP

Detajli izdelka

Uponor Combi Port M-Hybrid toplotna postaja HP 400V 15 ST 13H2 DH BP HA FR
Uponor Combi Port M-Hybrid toplotna postaja HP 400V 18 ST 21H3 DH BP HA FR
Uponor Combi Port M-Hybrid toplotna postaja HP 400V 15 ST 13H2 DI DH BP HA FR
Uponor Combi Port M-Hybrid toplotna postaja HP 400V 18 ST 21H3 DI DH BP HA FR

Dokumenti

Hitri vodič
3 KB1146115

Hitri vodič Combi Port M-Hybrid (1146115)

Tehnične informacije
12 KB1094902

Tehnični podatki Combi Port and Aqua Port (1094902)

Splošno

Specifikacije

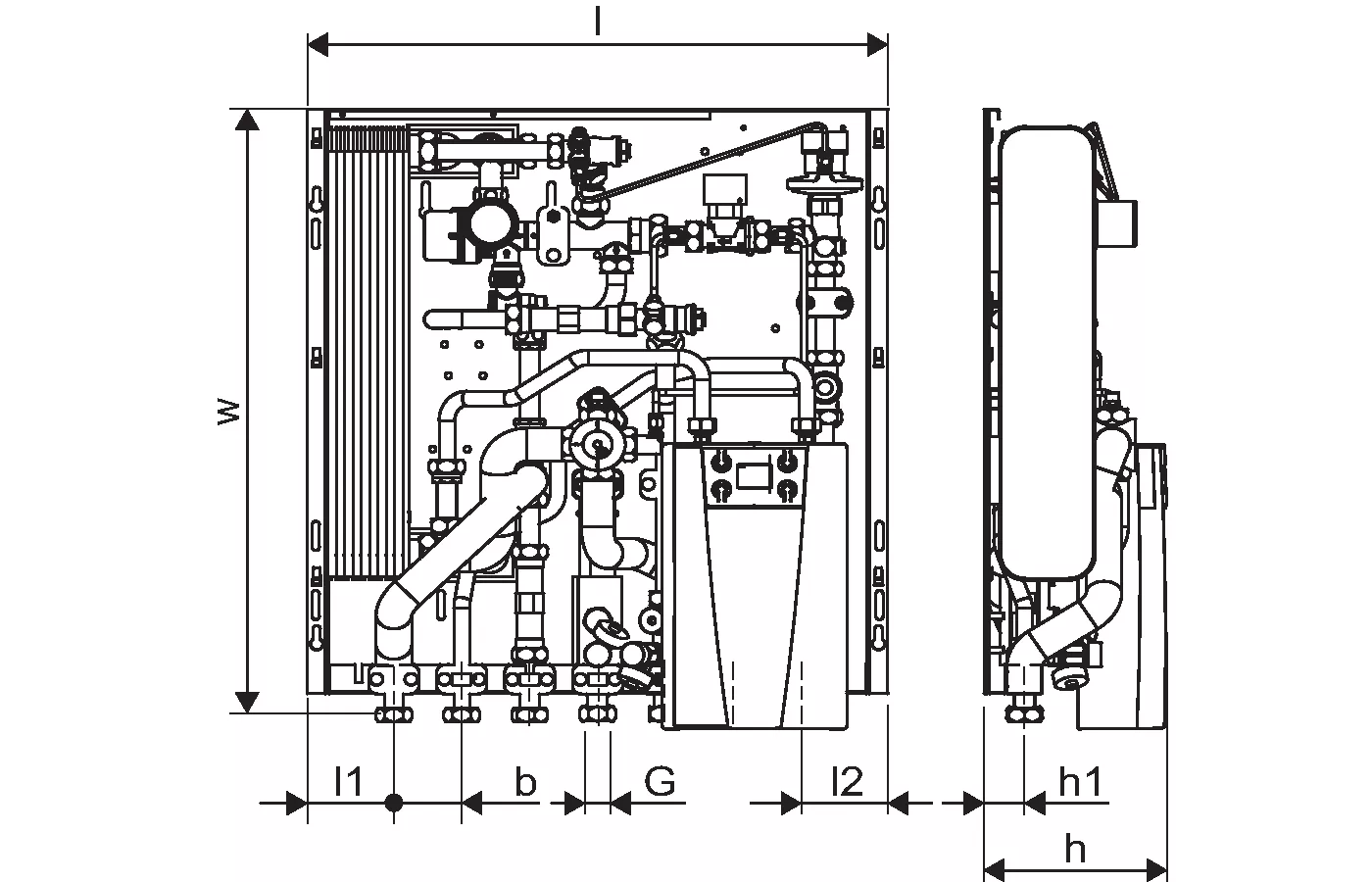
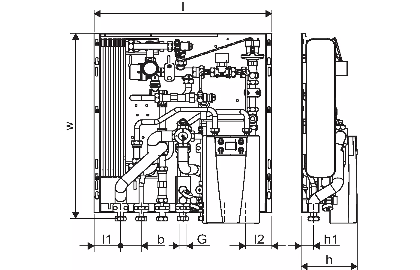
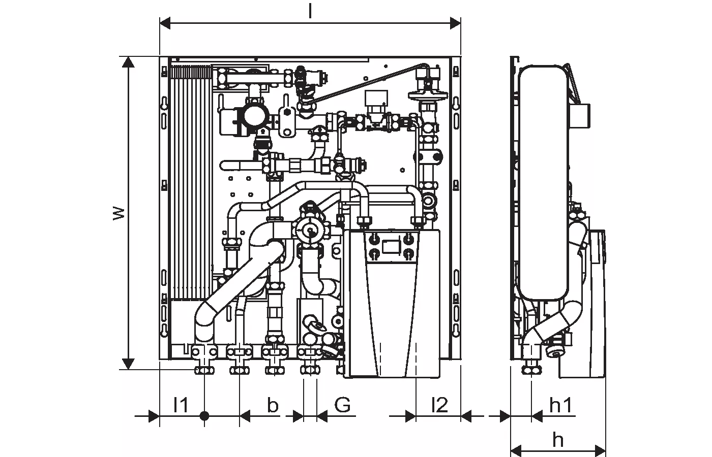
- priključek v celoti sestavljen in preizkušen pod tlakom
- cevne objemke iz plastike za zvočno zaščito in toplotno ločevanje
- DVGW-certificiran PM-ventil s patentirano tehnologijo trojnega tesnjenja
- toplotna izolacija na dovodnih ceveh
- termostatski obvodni ventil
- vključen električni grelec za toplo sanitarno vodo
- distančnik za merilnik toplotne energije 110 mm x 3/4 palca
- distančnik za merilnik vode 110 mm x 3/4 palca
- odzračevalni in drenažni ventili
- mrežasti filter za hladno vodo 0,5 mm
- mrežasti filter za dovod primarnega ogrevanja 0,5 mm
- možnost priključitve (označeno) električne ozemljitvene sponke
- najv. delovni tlak ogrevanja: PN10
- najv. delovni tlak ogrevanja sanitarne vode: PN10
- najv. delovna temperatura primarnega krogotoka 85 °C
- najv. delovna temperatura krogotoka sanitarne tople vode: 60 °C
- najv. Diferenčni tlak primarnega ogrevanja: 2,5 bara
- najm. sanitarni ogrevanja sanitarne vode: 2,0 bara
- namestitveni material ogrevanja sanitarne vode: CW617N
- namestitveni material za ogrevanje: CW617N, CW614N
- material cevi: nerjavno jeklo 1.4401
- mere: Š/V/G 555,5 × 618 × 174 mm

Uporaba

- Decentralizirana takojšnja proizvodnja sanitarne tople vode
- Sistemi talnega ogrevanja
- Sistemi toplotnih črpalk z nizkimi temperaturami primarnega ogrevalnega krogotoka

Certifikat

- Odobritev DVGW

Risbe izdelkov

1135556_REN
1135556
149 B
1135557_REN
1135557
154 B
1135570_REN
1135570
148 B
1135571_REN
1135571
155 B
1135556_ZMD
1135556
345 B
1135557_ZMD
1135557
345 B
1135570_ZMD
1135570
345 B
1135571_ZMD
1135571
345 B
1135556_LAB
1135556
145 B
1135557_LAB
1135557
146 B
1135570_LAB
1135570
146 B
1135571_LAB
1135571
150 B