Iz kataloga izdelkov napolnite košarico BIM

Uponor Combi Port M-Pro nadometna omarica+razdelilec OW

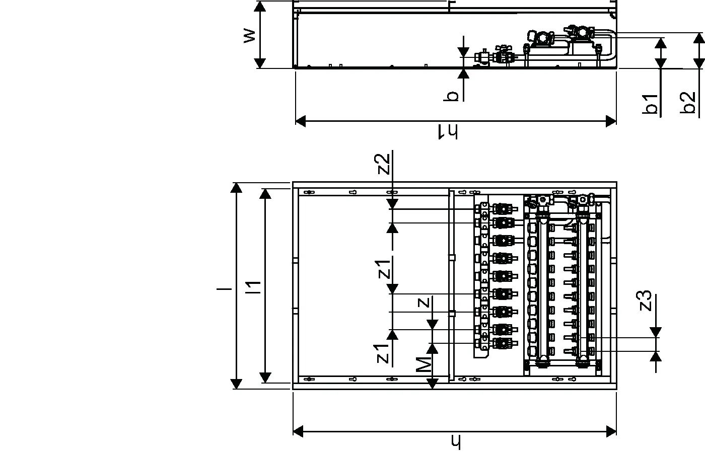
- Nadometno ohišje omarice, vključno z razdelilcem za ogrevanje in letvijo s predmontiranimi krogelnimi ventili.
- Oznake za dimenzioniranje:
- _HMV - set razdelilcev Vario-S za ogrevanje z (4,6,8,10) ogrevalnimi zankami
- _BV - set _(7,9) krogelnih ventilov predmontiranih na montažno letev znotraj omarice, za priključitev stanovanjske toplotne postaje

Uponor Combi Port M-Pro nadometna omarica+razdelilec OW

Detajli izdelka

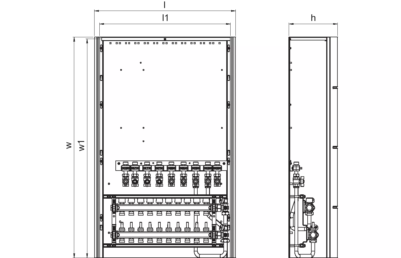
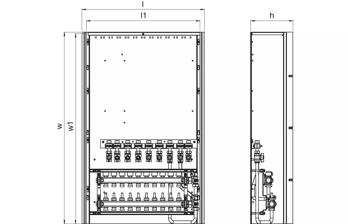
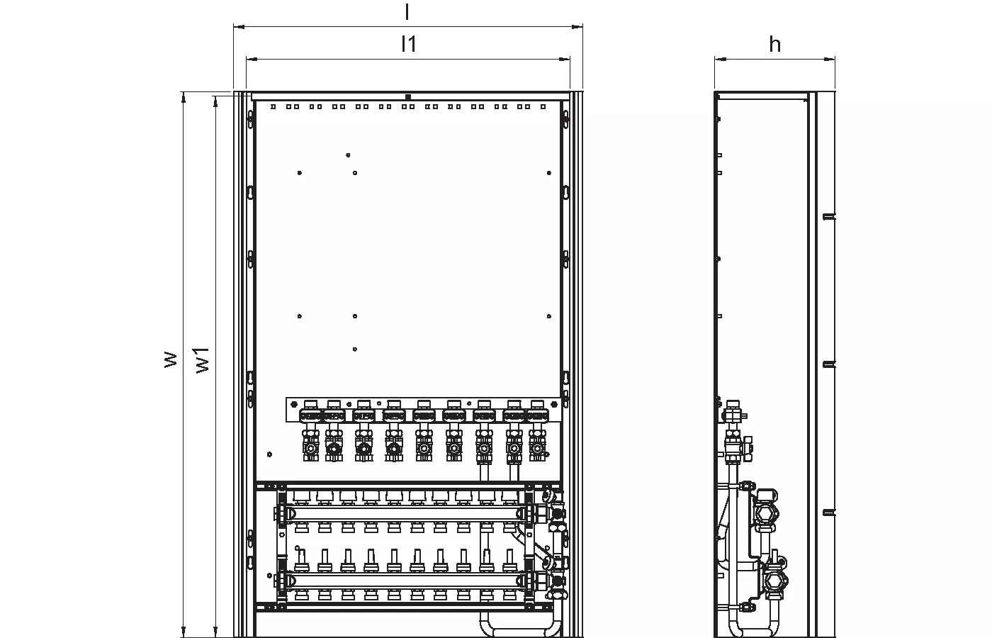
Uponor Combi Port M-Pro nadometna omarica+razdelilec OW 1180x700x300mm 4HM+9BV
Uponor Combi Port M-Pro nadometna omarica+razdelilec OW 1180x700x300mm 6HM+9BV
Uponor Combi Port M-Pro nadometna omarica+razdelilec OW 1180x700x300mm 8HM+9BV
Uponor Combi Port M-Pro nadometna omarica+razdelilec OW 1180x700x300mm 10HM+9BV

Dokumenti

Montažna in obratovalna navodila
10 KB1143447

Montažna in obratovalna navodila Combi Port M-Pro (1143447)

Tehnične informacije
12 KB1094902

Tehnični podatki Combi Port and Aqua Port (1094902)

Splošno

Specifikacije

- popolnoma sestavljena in tlačno preizkušena enota
- tehnične omejitve uporabe vode za ogrevanje in vodovod so prikazane na tehničnem listu
- cevni pritrdilci izdelani iz plastike za zvočno zaščito in termično prepreko za prevod toplote
- PM-regulator s certifikatom DVGW in patentirano tehnolgijo trikratnega tesnjenja
- toplotna izolacija dovodnih cevi
- termostatski bypass ventil
- odcep hladne pitne vode
- distančni kos za kalorimeter 110 mm x 3/4"
- distančni kos za vodomer 110 mm x 3/4"
- polnilno-izpustni set
- lovilec nečistoče na dovodu hladne pitne vode 0,5 mm
- lovilec nečistoče na primarnem dovodu ogrevne vode 0,5 mm
- označeno mesto za priključitev kabla za izenačitev potenciala
- maksimalni obratovalni tlak - ogrevanje: PN10
- maksimalni obratovalni tlak - vodovod: PN10
- maksimalna obratovalna temperatura: 85 °C
- maksimalni diferenčni tlak pri ogrevanju: 2,5 bar
- minimalni tlak pri vodovodu: 2 bar
- material fitingov pri vodovodu: CW617
- material fitingov pri ogrevanju: CW617N, CW614
- material cevi: nerjavno jeklo 1.4401
- mere: Š/V/G 556 x 620 x 110 mm

Uporaba

- decentralizirana trenutna priprava sanitarne tople vode
- sistemi talnega ogrevanja
- sistemi radiatorskega ogrevanja

Certifikat

- DVGW certifikat

Risbe izdelkov

1093819_ZMD
1093819
248 B
1093820_ZMD
1093820
229 B
1093821_ZMD
1093821
229 B
1093822_ZMD
1093822
229 B
1093819_REN
1093819
22 B
1093820_REN
1093820
22 B
1093821_REN
1093821
22 B
1093822_REN
1093822
88 B
1093822_REN
1093822
22 B
1093819_LAB
1093819
64 B
1093820_LAB
1093820
64 B
1093821_LAB
1093821
69 B
1093822_LAB
1093822
70 B