Llenar la cesta de la compra BIM desde el catálogo de productosLlenar la cesta de la compra BIM desde el catálogo de productos
Nuestra dirección de correo electrónico de atención al cliente ha cambiado - Resumen
 

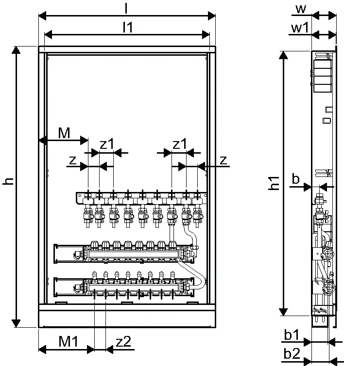
Uponor Combi Port M-Pro Caja y colector IW

- Caja montada en la pared que incluye pies, colector de calefacción y riel con válvulas de bola DN20 preinstaladas

- Códigos de dimensionamiento:

-- _HMV – juego de colectores Vario-S para calefacción con _ (4,6,8,10) circuitos de calefacción

-- _BV: conjunto de _ (7,9) válvulas de bola preinstaladas en el riel de montaje dentro de la caja para conexiones de interfaz de calor

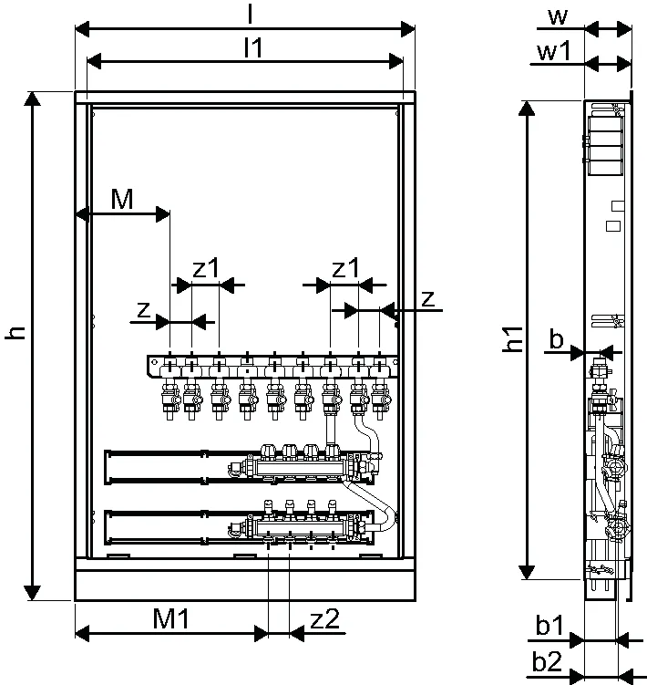
Uponor Combi Port M-Pro Caja y colector IW

Detalle del producto

Uponor Combi Port M-Pro Caja y colector IW 1200x750X110mm 4HM+9BV
Uponor Combi Port M-Pro Caja y colector IW 1200x750X110mm 6HM+9BV
Uponor Combi Port M-Pro Caja y colector IW 1200x750X110mm 8HM+9BV
Uponor Combi Port M-Pro Caja y colector IW 1200x750X110mm 10HM+9BV

Documentos

Manual de instalación y funcionamiento
10 KB1143441

Manual de instalación y funcionamiento Combi Port M-Pro (1143441)

Información técnica
12 KB1094902

Información técnica Combi Port and Aqua Port (1094902)

Más información

Especificación

- Puerto completamente ensamblado y probado en presión.
- Los límites técnicos de uso en agua para calefacción y fontanería se muestran en las fichas técnicas.
- Abrazaderas para tubos de plástico para protección acústica y desacoplamiento térmico.
- Válvula PM certificada por DVGW con tecnología patentada de triple sellado.
- Aislamiento térmico en las tuberías de suministro.
- Válvula de derivación termostática.
- Salida de agua fría.
- Espaciador para contador de calor 110 mm x3/4".
- Espaciador para contador de agua 110 mm x3/4".
- Válvula de ventilación y drenaje.
- Colador para agua fría 0,5 mm.
- Filtro para línea de alimentación de calefacción primaria de 0,5 mm.
- Posibilidad de conexión (marcada) de una terminal de tierra eléctrica.
- Máx. Presión de funcionamiento calefacción: PN10.
- Máx. Presión de funcionamiento sanitaria: PN10.
- Máx. Temperatura de funcionamiento: 85 °C.
- Máx. Presión diferencial calefacción primaria: 2,5 bar.
- Mín. Presión sanitaria: 2,0 bar.
- Material racor sanitario: CW617N.
- Calefacción de material de montaje: CW617N, CW614N.
- Material del tubo: acero inoxidable 1.4401.
- Medidas: An/Al/Pr 556 x 620 x 110 mm.

Aplicación

- Generación descentralizada de agua caliente sanitaria instantánea.
- Sistemas de calefacción por suelo radiante.
- Sistemas de calefacción por radiadores.

Certificación

- Homologación DVGW.

Imágenes de producto

1093815_ZMD
1093815
136 B
1093816_ZMD
1093816
136 B
1093817_ZMD
1093817
136 B
1093818_ZMD
1093818
136 B
1093815_REN
1093815
23 B
1093816_REN
1093816
85 B
1093817_REN
1093817
23 B
1093818_REN
1093818
87 B
1093818_REN
1093818
23 B
1093815_LAB
1093815
97 B
1093816_LAB
1093816
97 B
1093817_LAB
1093817
79 B
1093818_LAB
1093818
79 B