Naplňte nákupný košík BIM z katalógu výrobkov

Uponor Combi Port M-Pro rozhranie UFH

- Verzia UFH pre teplú úžitkovú vodu a priame vykurovanie s pripojením na podlahové kúrenie (vrátane zmiešavacieho okruhu s obehovým čerpadlom).
- Kódy kótovania:
- 15,19 – indikácia výkonu teplej úžitkovej vody (l/min)
- CB – medený spájkovaný nerezový výmenník tepla na prípravu teplej úžitkovej vody
- St – bez neželezných kovov spájkovaný nerezový výmenník tepla na prípravu teplej úžitkovej vody
- BP – funkcia predohrevu prívodných potrubí
- DT – regulátor diferenčného tlaku na tepelnom okruhu jednotky tepelného rozhrania na prípravu teplej úžitkovej vody
- ZM - cirkulačný modul na teplú úžitkovú vodu s poistným ventilom, obehovým čerpadlom a regulátorom diferenčného tlaku
- MS – zmiešavacia súprava s obehovým čerpadlom, termostatom a spätnou klapkou pre vykurovací okruh bytu
- TL – termostatický obmedzovač teploty pre teplú úžitkovú vodu s ponorným snímačom
- UL – termostatický obmedzovač teploty pre okruh podlahového vykurovania
- SS – bezpečnostný termostatický spínač pre vykurovací okruh bytu
- ZA - zónový ventil vo vratnom potrubí vykurovacieho okruhu obytných budov vrátane 2-bodového pohonu
- 2C – pripojenie druhého priameho vykurovacieho okruhu s extra zónovým ventilom (bez pohonu, bez zmiešavacieho okruhu)

Uponor Combi Port M-Pro rozhranie UFH

Podrobnosti o položke

Uponor Combi Port M-Pro rozhranie UFH 15 CB BP MS UL TL SS ZA
Uponor Combi Port M-Pro rozhranie UFH 15 CB BP MS UL TL SS ZA 2C
Uponor Combi Port M-Pro rozhranie UFH 15 St BP DI ZM MS UL SS ZA 2C
Uponor Combi Port M-Pro rozhranie UFH 19 CB BP MS UL TL SS ZA
Uponor Combi Port M-Pro rozhranie UFH 19 CB BP MS UL TL SS ZA 2C
Uponor Combi Port M-Pro rozhranie UFH 19 St BP DI ZM MS UL SS ZA 2C

Dokumenty

Návod na montáž a prevádzku
10 KB1143448

Návod na montáž a prevádzku Combi Port M-Pro (1143448)

Stručný návod
4 KB1143305

Stručný návod Combi Port M-Pro (1143305)

Prehlásenie o zhode
756 B1143059

Uponor DoC Combi Port M-Pro 1093787 INT (1143059)

O produkte

Špecifikácia

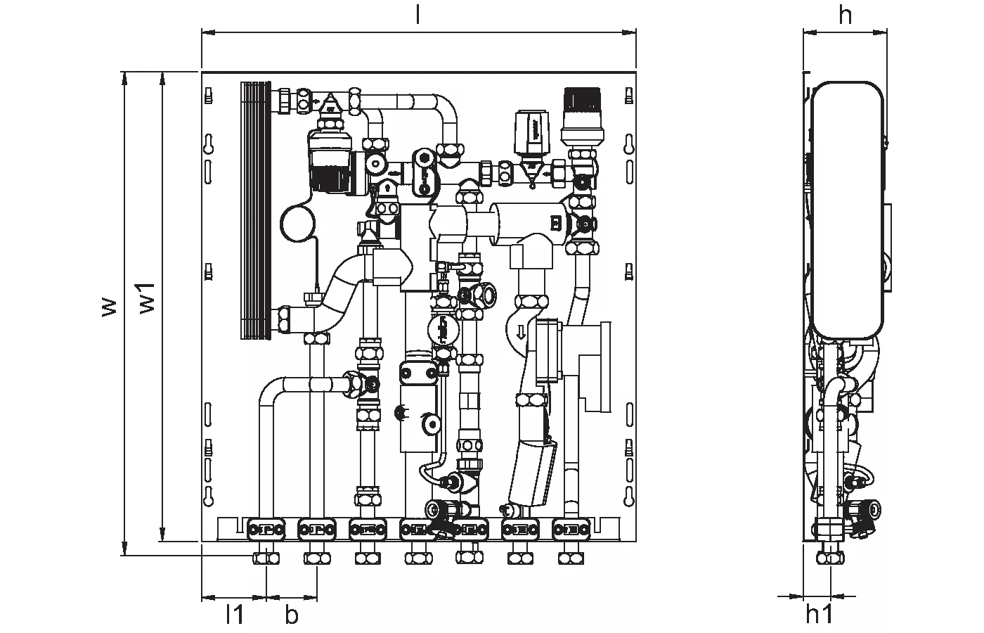
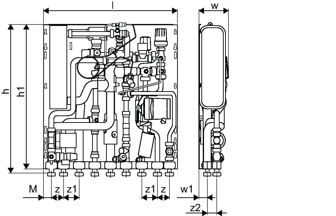
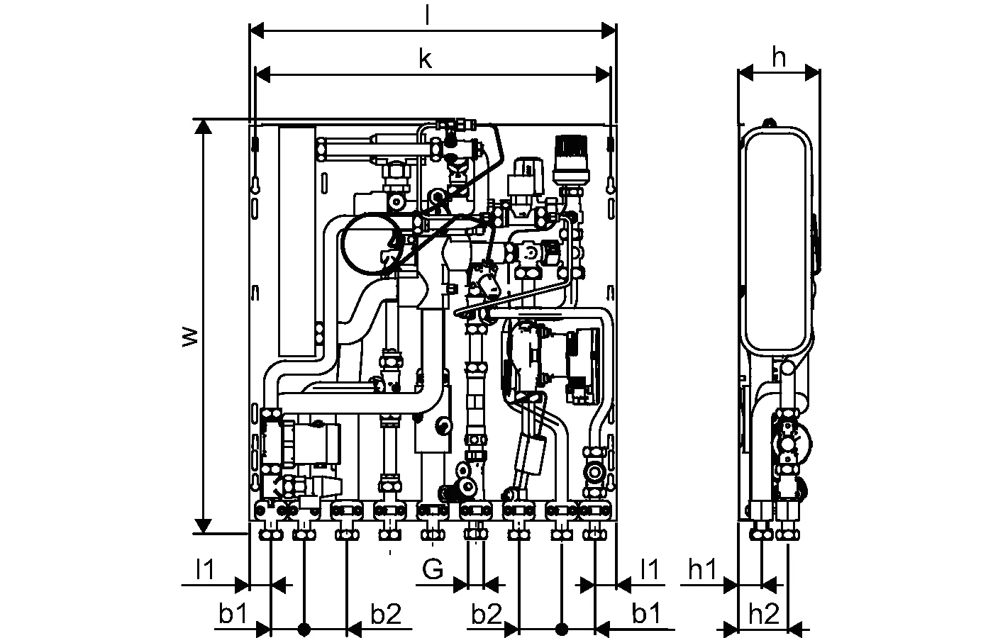
- kompletne zmontované a tlakovo odskúšané
- technické limity použitia pre vodu na vykurovanie a inštalatérstvo sú uvedené v technických listoch
- potrubné svorky vyrobené z plastu na ochranu proti hluku a tepelné oddelenie
- DVGW certifikovaný PM ventil s patentovanou technológiou trojitého tesnenia
- tepelná izolácia na prívodnom potrubí
- termostatický obtokový ventil
- výstup studenej vody
- pripojenie pre merač tepla 110 mm x 3/4""
- pripojenie pre vodomer 110 mm x 3/4""
- odvzdušňovací a vypúšťací ventil
- sitko na studenú vodu 0,5 mm
- sitko pre primárne vedenie vykurovania 0,5 mm
- Možnosť pripojenia (označené) elektrického uzemňovacieho oka
- max. prevádzkový tlak vykurovania: PN10
- max. prevádzkový tlak sanitárnej vody: PN10
- max. prevádzková teplota: 85 °C
- max. diferenčný tlak primárneho ohrevu: 2,5 bar
- min. sanitárny tlak: 2,0 bar
- materiál tvaroviek sanitárnej časti: CW617N
- materiál tvaroviek časti pre vykurovanie: CW617N, CW614N
- materiál potrubia: nehrdzavejúca oceľ 1.4401
- rozmery: š/v/h 556 x 620 x 110 mm

Aplikácia

- Decentralizovaná okamžitá príprava teplej vody pre domácnosti
- Podlahové vykurovacie systémy
- Radiátorové vykurovacie systémy

Certifikácia

- schválenie DVGW

Výkresy produktov

1093787_ZMD
1093787
327 B
1093788_ZMD
1093788
333 B
1093791_ZMD
1093791
327 B
1093792_ZMD
1093792
333 B
1128852_ZMD
1128852
348 B
1128853_ZMD
1128853
342 B
1093787_REN
1093787
137 B
1093787_REN
1093787
708 B
1093788_REN
1093788
145 B
1128852_REN
1128852
156 B
1128853_REN
1128853
161 B
1093787_LAB
1093787
169 B
1093788_LAB
1093788
177 B
1093791_LAB
1093791
165 B
1093792_LAB
1093792
174 B
1128852_LAB
1128852
186 B
1128853_LAB
1128853
185 B