Naplňte nákupný košík BIM z katalógu výrobkov

Uponor Combi Port M-Pro rozhranie RC

- RC verzia pre teplú úžitkovú vodu a priame vykurovanie s pripojením na radiátor (bez zmiešavacieho okruhu).
Kódy kótovania:
- 15,19 – indikácia výkonu teplej úžitkovej vody (l/min)
- CB – medený spájkovaný nerezový výmenník tepla na prípravu teplej úžitkovej vody
- St – bez neželezných kovov spájkovaný nerezový výmenník tepla na prípravu teplej úžitkovej vody
- BP – funkcia predohrevu prívodných potrubí
- DI – primárny regulátor diferenčného tlaku na vstupe jednotky tepelného rozhrania
- DT – regulátor diferenčného tlaku na tepelnom okruhu jednotky tepelného rozhrania na prípravu teplej úžitkovej vody
- TL – termostatický obmedzovač teploty pre teplú úžitkovú vodu s ponorným snímačom
- RL – obmedzovač teploty spiatočky pre vykurovací okruh bytu
- ZM – cirkulačný modul na teplú úžitkovú vodu s poistným ventilom, obehovým čerpadlom a regulátorom diferenčného tlaku
- ZV – zónový ventil vo vratnom potrubí vykurovacieho okruhu bytov bez pohonu

Uponor Combi Port M-Pro rozhranie RC

Podrobnosti o položke

Uponor Combi Port M-Pro rozhranie RC 15 CB BP DI TL
Uponor Combi Port M-Pro rozhranie RC 15 CB BP DH TL RL
Uponor Combi Port M-Pro rozhranie RC 15 St BP DI ZM ZV
Uponor Combi Port M-Pro rozhranie RC 19 CB BP DH TL
Uponor Combi Port M-Pro rozhranie RC 19 CB BP DH TL RL
Uponor Combi Port M-Pro rozhranie RC 19 St BP DI ZM ZV

Dokumenty

Návod na montáž a prevádzku
10 KB1143448

Návod na montáž a prevádzku Combi Port M-Pro (1143448)

Stručný návod
4 KB1143305

Stručný návod Combi Port M-Pro (1143305)

O produkte

Špecifikácia

- kompletne zmontované a tlakovo odskúšané
- technické limity použitia pre vodu na vykurovanie a inštalatérstvo sú uvedené v technických listoch
- potrubné svorky vyrobené z plastu na ochranu proti hluku a tepelné oddelenie
- DVGW certifikovaný PM ventil s patentovanou technológiou trojitého tesnenia
- tepelná izolácia na prívodnom potrubí
- termostatický obtokový ventil
- výstup studenej vody
- pripojenie pre merač tepla 110 mm x 3/4""
- pripojenie pre vodomer 110 mm x 3/4""
- odvzdušňovací a vypúšťací ventil
- sitko na studenú vodu 0,5 mm
- sitko pre primárne vedenie vykurovania 0,5 mm
- Možnosť pripojenia (označené) elektrického uzemňovacieho oka
- max. prevádzkový tlak vykurovania: PN10
- max. prevádzkový tlak sanitárnej vody: PN10
- max. prevádzková teplota: 85 °C
- max. diferenčný tlak primárneho ohrevu: 2,5 bar
- min. sanitárny tlak: 2,0 bar
- materiál tvaroviek sanitárnej časti: CW617N
- materiál tvaroviek časti pre vykurovanie: CW617N, CW614N
- materiál potrubia: nehrdzavejúca oceľ 1.4401
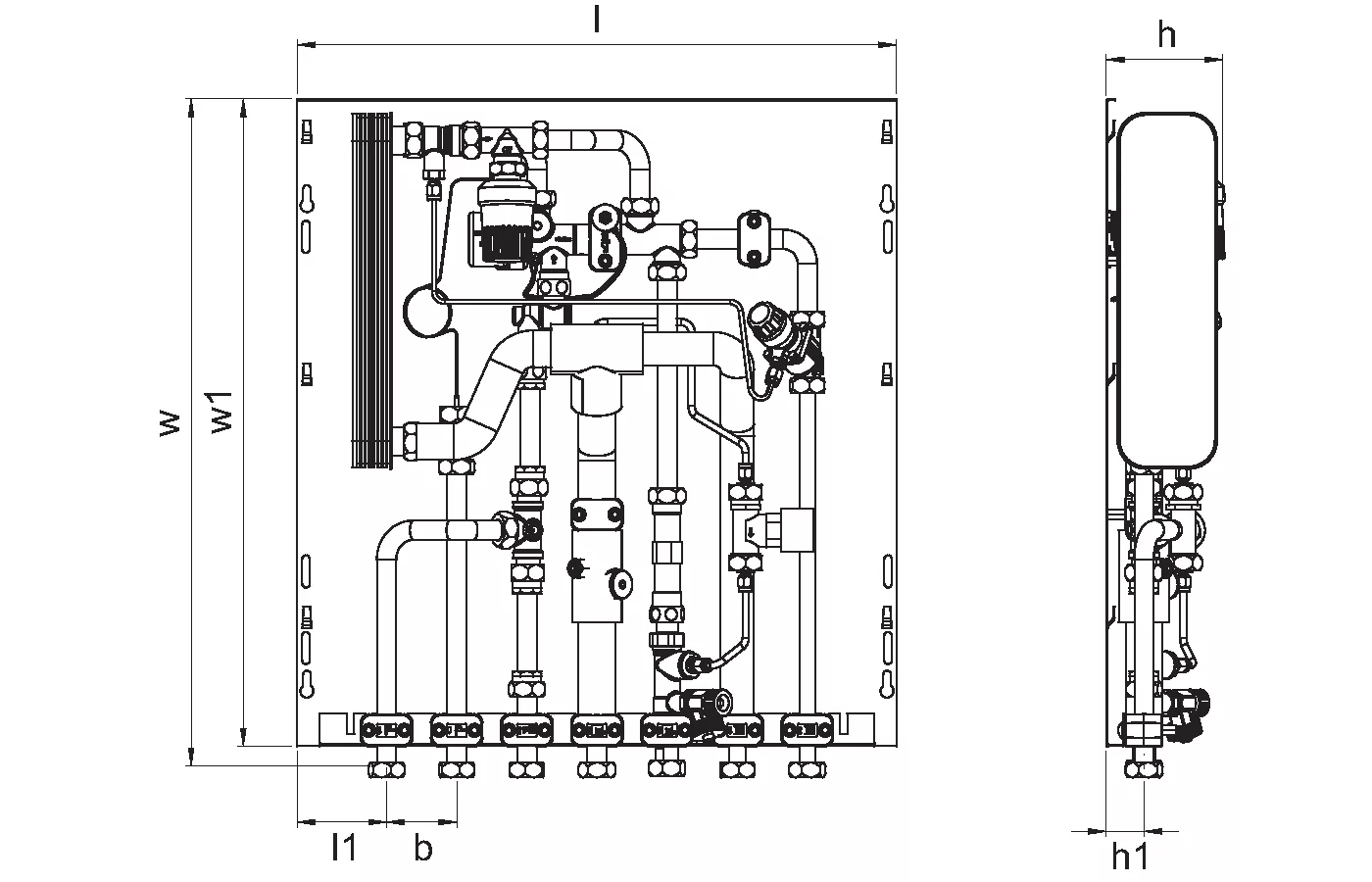
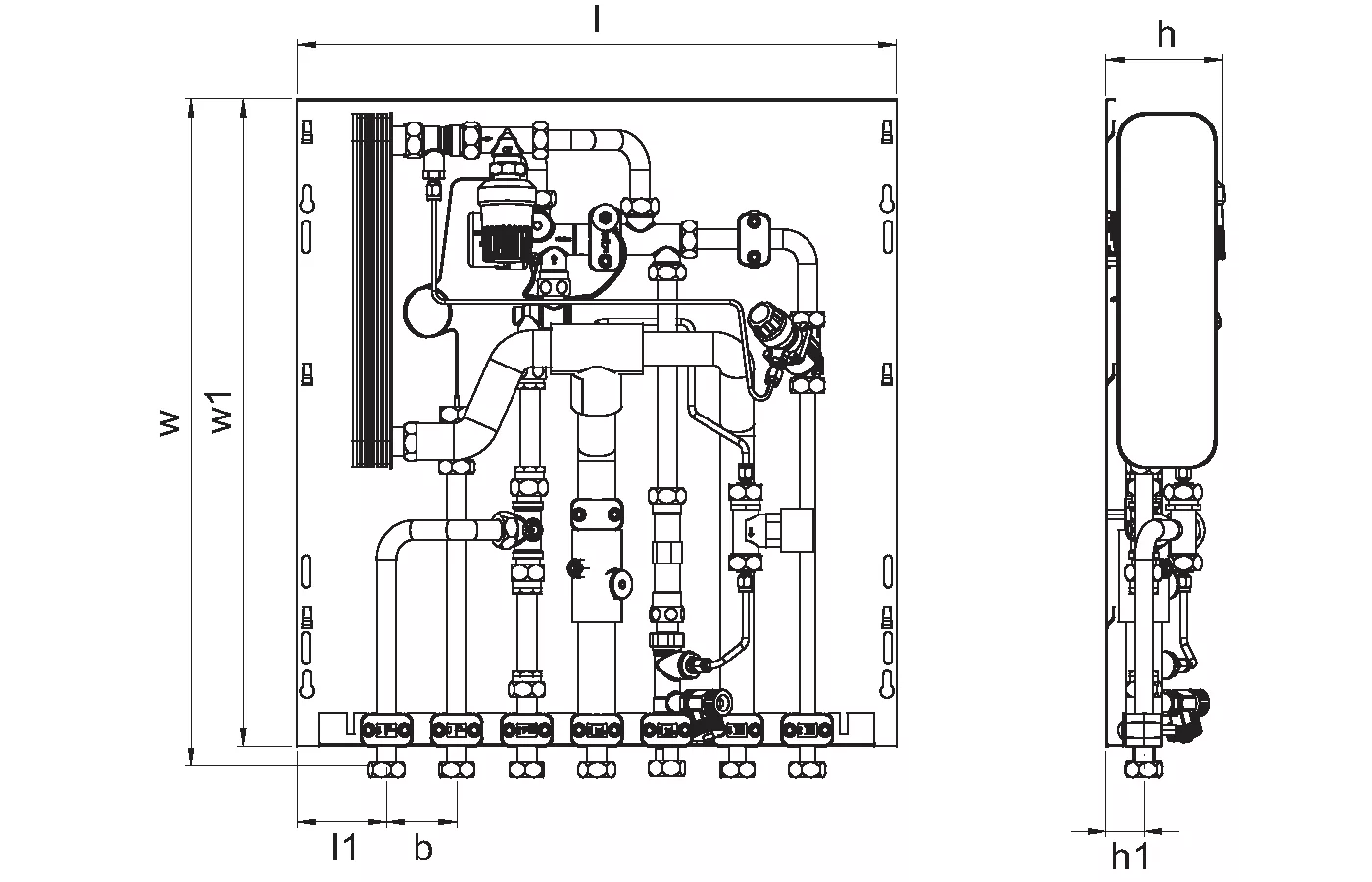
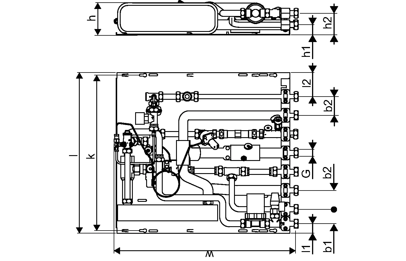
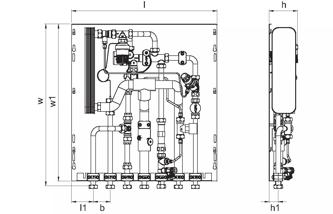
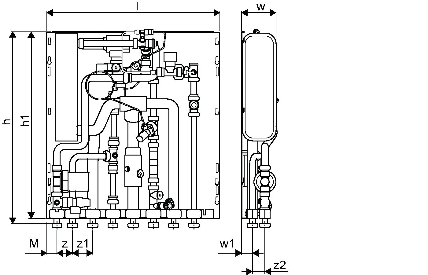
- rozmery: š/v/h 556 x 620 x 110 mm

Aplikácia

- Decentralizovaná okamžitá príprava teplej vody pre domácnosti
- Podlahové vykurovacie systémy
- Radiátorové vykurovacie systémy

Certifikácia

- schválenie DVGW

Výkresy produktov

1093770_ZMD
1093770
290 B
1093772_ZMD
1093772
295 B
1093774_ZMD
1093774
290 B
1093776_ZMD
1093776
295 B
1128854_ZMD
1128854
314 B
1128855_ZMD
1128855
277 B
1093770_LAB
1093770
1 KB
1093772_LAB
1093772
154 B
1093774_LAB
1093774
149 B
1093776_LAB
1093776
153 B
1128854_LAB
1128854
160 B
1128855_LAB
1128855
156 B
1093770_REN
1093770
120 B
1093770_REN
1093770
621 B
1093772_REN
1093772
121 B
1093772_REN
1093772
625 B
1093774_REN
1093774
230 B
1093776_REN
1093776
223 B
1128854_REN
1128854
142 B
1128855_REN
1128855
215 B